Soubor nemovitostí v ulici Oskara Nedbala ve Čtyrech dvorech, České Budějovice

Celkem 22 fotografií, zobrazit všechny
Virtuální prohlídka
Prodejce:
Lubor Myšák
telefon: +420777238978
lubor.mysak@post.cz

Máte dotazy? Kontaktujte nás:

* Jméno
* Email
* Telefon
* Váš vzkaz
 
Odesláním dotazu zároveň souhlasíte se zpracováním osobních údajů

Soubor nemovitostí v ulici Oskara Nedbala ve Čtyrech dvorech, České Budějovice

18.490.000 ,-
Soubor nemovitostí v ulici Oskara Nedbala ve Čtyrech dvorech, České Budějovice
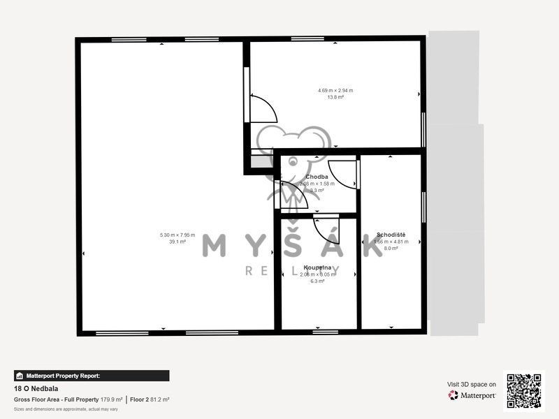
Nabízím vám ke koupi zajímavý soubor nemovitých věcí vhodný jak k vlastnímu podnikatelskému záměru, tak i jako případná investice. Jedná se o dům, který v současné době nabízí kancelářské prostory v přízemí i v patře, které bylo nově vybudováno v roce 2015, s vyřešeným parkováním včetně legálního vjezdu přímo z ulice a před třemi lety nově postavenou garáží o podlahové ploše 80 m2 s navazujícím, zámkovou dlažbou, zadlážděným pozemkem o výměře 100 m2, který je možno rovněž využít k parkování. Přízemí i patro domu fungují odděleně. Každé má vlastní vstup, vlastní kondenzační plynový kotel, klimatizaci - tepelné čerpadlo, podružné měření vody i elektřiny a samostatný plynoměr pro každé z nich. Patro je možné bez dalších úprav využívat jako prostorný byt 2+kk, případně je možné ho snadno adaptovat na 3+kk, na což je vše plně připraveno. Dům je kompletně zateplený a náklady na jeho provoz jsou velmi sympatické. Majitel instaloval kamerový systém a zabezpečovací zařízení napojené na PCO, LED rampy uvnitř i z vnějšku objektu, dvě vjezdové automatické brány, jak na parkoviště vedle domu, tak u vjezdu ke garáži. Za zmínku určitě stojí i to, že parkoviště je obklopeno vzrostlými stromy magnolií a sakur, keři azalek a rododendronů. Jedná se o objekt na frekventovaném místě s různými možnostmi využití - od ordinací přes kanceláře firmy až po kombinaci vlastního bydlení a podnikání pod jednou střechou. V současné době je přízemí pronajato a je zde i výnos z pronájmu reklam umístěných na plotě. Informace o stávajícím i odhadovaném potencionálním výnosu vám rád sdělím po telefonu, případně prostřednictvím e-mailu. Patro zůstává kompletně zařízené tak jak vidíte na fotografiích. Nový majitel obdrží kompletní projektovou dokumentaci k rekonstrukcím i výstavbě garáže. Mezi přiloženými fotografiemi naleznete plánky obou podlaží a objekt si můžete i virtuálně projít. Pokud na tento inzerát narazíte na serveru, který nepodporuje virtuální prohlídky nemovitostí, tak odkaz na ni najdete na mých webových stránkách. Veškeré informace vám rád poskytnutu při osobní prohlídce objektu.
Typ nemovitosti:
Komerce
Číslo nemovitosti:
2026-02-27
Typ komerce:
Kancelář
Operace:
Prodej
Adresa:
České Budějovice
O. Nedbala 332/18
K nastěhování od:
1.4.2026
Plocha pozemku:
483 m2
Plocha zastavěná:
205 m2
Plocha podlahová:
180 m2
Podlaží:
2. podlaží z 2 podlaží celkem
Stav objektu:
Velmi dobrý
Konstrukce:
Cihlová
Umístění objektu:
Rušná část obce
Komunikace:
Asfaltová
Rok rekonstrukce:
2015
Typ certifikátu:
vyhláška č. 264/2020 Sb
Vydaný certifikát:
Je zobrazena tato GPS souřadnice:
48° 59' 4.513"N, 14° 26' 56.031"E